LINERA
リネラという、暮らす歓びを
本質を見つめ
シンプルに、ここちよく
暮らすということ
住まいの本質とは。そのひとつの答えがここにあります。暮らしにとって本当に大切なことを問い、空間の広さ、つながり、動線。色彩や素材、仕上げ、設備や躯体など、ひとつ一つ、自分にとっての最適解を選ぶ。シンプルに、ここちよく、コンパクトに心のゆとりを生み出す余白のある住まいをつくる。平屋というフラットなスタイルからはじまる、暮らす歓びを、ご提案します。
ヴィラのようなこころ解き放つ佇まいがわが家になる
空が大きくひろがり、環境に溶け込む、水平ラインが美しいこころ解き放つ、ヴィラのような佇まい。日常と非日常が交差する上質でゆとりある暮らしと、ここちよさがそこにはあります。

ウチとソトがつながったここちよい空間で暮らしを紡ぐ
床から天井近くまでの窓が連続する、開放感あふれるLDK。光と景色をたっぷりと取り込み、ウチとソトがシームレスにつながった明るくここちよい空間で、豊かな暮らしが紡がれていきます。

プライベートな時間をゆったり上質に。暮らしに余白をつくる
ゆったり上質に、プライベートな時間をここちよく過ごす。
主寝室にワークスペースやクローゼットをプラス、2部屋に使い分けるなど、空間と時間を上手に活かすことで、暮らしに余白が生まれます。

プライベートルームは、ライフスタイルや使い勝手に合わせてアレンジが可能です。

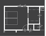
将来、2部屋としても使えるよう、ドアを2つ設置。
それぞれ個室と使える、収納付2部屋プラン。
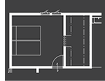
寝室の収納に加え、洗面室側からも使える収納をプラス。
ウォークインクローゼット+ワークスペースを設置。
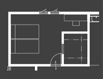
たっぷり収納できる約4畳のクローゼットルームを装備。
充実の収納+洗面室に行き来できる扉を設けたプラン。LINERA 住まいづくり3つのポイント
01/ PLANNING GUIDE プランニング
暮らしに合わせて最適化する「セミオーダー住宅」LINERAは、完成された規格をそのまま建てるだけの家ではありません。
洗練されたベースプランをもとに、お客様のライフスタイルや敷地条件、地域の気候風土に合わせて、地域の工務店が間取りや大きさを自由にアレンジしてつくる「セミオーダー住宅」です。
02 / PLAN VARIATIONS プランバリエーション
LINERAは、20坪を基本とした平屋およびロフト付、ガレージ付のプラン構成です。敷地条件やライフスタイル、お好みに合わせて全12プランよりお選びいただけます。
03 / DESIGN STYLE デザインスタイル
上質で洗練された空間デザイン、コンパクトでありがなら、ゆとりと品格を演出する空間構成。内装は、それぞれに世界観を持った3つのデザインスタイル(MUTED TONE、KINARI MODERN、RESIDENCIOUS)をご用意し、家具までトータルコーディネートされた美しい暮らしをご提案します。
ABOUT LINERA
HOUSE SIMULATOR
理想の住まいを、理想の価格で。
LINERA
シミュレーションLINERAでの家づくりの目安となる価格をシミュレーションいただけます。
ご希望のプランやスタイル、設備などを選択して、あなたにぴったりの住まいのイメージを膨らませてみてください。
