プランバリエーション
PLAN VARIATIONSLINERAは、20坪を基本とした平屋およびロフト付、ガレージ付のプラン構成です。敷地条件やライフスタイル、お好みに合わせて全12プランよりお選びいただけます。
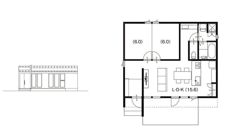
BASE PLAN
S20
BASE + LOFT PLAN
S20+L
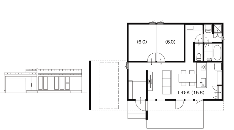
BASE + GARAGE PLAN
S20+G
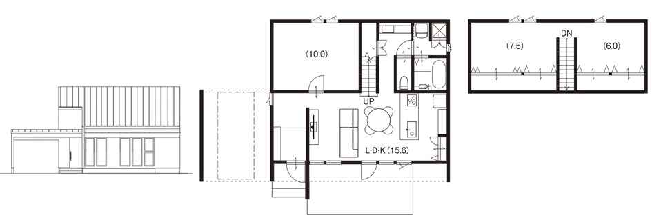
BASE + LOFT + GARAGE PLAN
S20+L+G
基本仕様
| 外壁 | 壁T100 |
|---|---|
| 小屋・屋根 | 小屋T100 ー部屋根T105 |
| 基礎 | 基礎断熱 XPS100mm |
| サッシ | TW Low-E 複層ガラス(南面クリア、その他グリーン) |
| 玄関 | ジエスタ2 K2 |
設計性能
| UA値 | 0.32 W/㎡・K |
|---|---|
| Q値 | 1.27 W/㎡・K |
| ηAC値 | 1.1 |
| ηAH値 | 1.4 |
※地域区分:6地域、方位:真南
HOUSE SIMULATOR
理想の住まいを、理想の価格で。
LINERA
シミュレーションLINERAでの家づくりの目安となる価格をシミュレーションいただけます。
ご希望のプランやスタイル、設備などを選択して、あなたにぴったりの住まいのイメージを膨らませてみてください。
